К списку объявлений

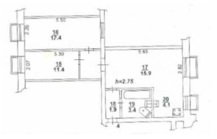
3-комн. , Симферопольская ул., 66

Район:

Ворошиловский

Жилая пл.

40 м2

Кухон пл.

5 м2

Описание:

Продаётся уютная трёхкомнатная квартира от собственника. Район: рядом с ТЦ Горизонт, 4-я линия домов от проспекта Нагибина. Тихий и спокойный двор обеспечит комфорт и спокойствие Вашей семье. Инфраструктура: всё необходимое под рукой — супермаркет Ашан, Сбербанк, Почта, Магнит, Пятёрочка, Агрокомплекс, поликлиника, детский сад, школа 90, аптеки, аквапарк H2O и Озон в самом доме. Удобства: вся необходимая мебель и техника включены в стоимость, выполненный евроремонт с свежими обоями и декоративной штукатуркой на стенах. Комфорт: наличие газовой колонки гарантирует бесперебойное горячее водоснабжение независимо от сезонных проблем. Посудомоечная машина позволит не тратить время на мытье посуды. Стиральная машина Samsung на 8кг с функцией сушки избавит от проблем с развешиванием одежды. Смарт телевизор LG, газовая плита с духовкой Gorenje, дополняют комплект техники. Сплит система Haier 15 мощности обеспечивает комфорт по всей квартире. Дополнительные преимущества: прекрасные и доброжелательные соседи, закрытая кладовка площадью 3 кв.м., идеально подойдёт для хранения вещей. Квартира полностью подготовлена для комфортного проживания — идеальный выбор для семейного счастья!

Стоимость

5 200 000 ₽

Связаться с собственником

+7 xxx-xxx-xxx

Собственник

Контакты собственника Без комиссии Объект проверен:
Отчет о проверке сделан: 19.дек. 16:50
Присылать похожие варианты

Подпишитесь на новые варианты в telegram или на почту! Это очень удобно и абсолютно бесплатно

Просмотров объявления: 69
Номер объявления в базе: 53887

Поделится:

Похожие 3-комнатные квартиры без комиссии:

3-комн.

Евротрешка. 2 отдельные спальни + кухня-зал Полностью капитальный ремонт в 2022 году: Окна+балкон, стяжка, перегородки пеноблок, электрика вся новая (кабель ГОСТ), сантехника, отопление, штукатур...

5 500 000 ₽ / в месяц

Район: Ворошиловский
3-комн.

Продается 3-ком, квартира. Рынок квадро. Отличное место, школа, детский сад. Отличное ТСЖ. В квартире по факту 95 квадратов.

12 000 000 ₽ / в месяц

Район: Ворошиловский
3-комн.

Продаю 3 комнатную квартиру в Золотом квадрате Северного жилого массива. Там, где парки отдыха и развлечений соседствуют с гипермаркетами и торговыми центрами. OТЛИЧHОЕ ПРЕДЛОЖЕНИЕ СЖM!!!!! сpедни...

9 000 000 ₽ / в месяц

Район: Ворошиловский
3-комн.

Просторная трехкомнатная квартира в самом замечательном районе СЖМ. Отличное предложение для семьи! Новый качественный ремонт: - три изолированные комнаты, -кухонный гарнирур, -новая сантехника...

6 500 000 ₽ / в месяц

Район: Ворошиловский
3-комн.

Продаю 3-х комнатную квартиру в тихом месте. Рядом два детских садика и школа, в 5 минутах ходьбы. Магнит, Пятерочка, остановка все рядом, тоже в 5 минутах ходьбы. Во дворе парковка со шлагбаумом....

16 500 000 ₽ / в месяц

Район: Ворошиловский
3-комн.

СОБСТВЕННИК! БЕЗ ПОСРЕДНИКОВ! Продаю тёплую, уютную, светлую квартиру в золотом квадрате Северного жилого массива. В половине квартиры новый ремонт ( кухня, зал, лоджия). В двух спальнях косметичес...

12 770 000 ₽ / в месяц

Район: Ворошиловский
161nd.ru — база по недвижимости. В данном объявлении продается Трехкомнатная квартира общей площадью 40 м² по адресу: город Ростов-на-Дону, Симферопольская ул., 66. Вы можете приобрести данный объект без посредников за 5 200 000 ₽ рублей. Все подробности уточняйте у собственника жилья по телефону или в личном сообщении.
Если объявление неактуально, вы можете пожаловаться и оно будет перенесено в архив.
Вся информация в объявлении принадлежит его автору, сервис 161nd.ru лишь предоставил услуги по его проверке на отсутствие дополнительных платежей посредникам. Удаление неактуальных объявлений происходит в автоматическом режиме, за устаревшие объявления администрация ответственности не несёт. Согласно пункту 5.4. пользовательского соглашения, запрещено передавать информацию из объявлений третьим лицам. Отчёт по объявлению актуален исключительно на момент формирования.